Купить нашпальную прокладку ОП-366 ТУ 2539-161-01124323-2003 у нас на складе |
|
2025-12-05
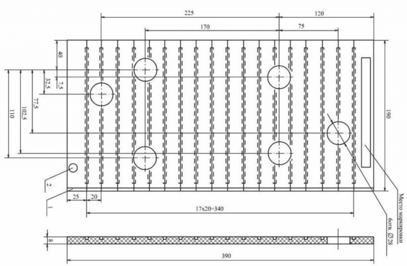
Прокладка резиновая ОП-366 под подкладку ДН6-65 ГОСТ Р 56291-2014,из наличия.
ТУ 2539-161-01124323-2003 Прокладка резиновая ОП-366 под подкладку применяется в качестве амортизатора между шпалой деревянной и подкладкой ДН6-65. Вес 1шт.кг: 0.640 Размер (д/ш/в), мм:290x190x8 Доставка по России, или на самовывоз с нашего склада.к. т. +7(905)145-42-45, WhatsApp/Telegram.
контактное лицо:
Александр
адрес:
телефон:
+79051454245
email:
Отправить почту
Количество просмотров:
2
|

